SOLD!
Low-Maintenance Living with Secure Parking
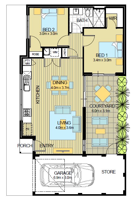
Positioned in a quiet pocket of Spearwood, this well-designed residence offers comfortable, low-maintenance living with a clever layout and standout storage options – perfect for first-home buyers, downsizers or investors alike.
Step inside to discover a light-filled open-plan living and dining area that flows seamlessly from the kitchen, creating a welcoming space for everyday living. The kitchen is well equipped with a dishwasher, plentiful storage including overhead cupboards, making both daily meals and entertaining effortless. Split system air conditioning ensures year-round comfort throughout the home.
Accommodation includes two well-sized bedrooms, with fans, thoughtfully positioned for privacy, alongside a central bathroom. The property also includes a practical european laundry and a built-in linen cupboard. A paved private courtyard extends the living space outdoors, ideal for enjoying a morning coffee or entertaining.
One of the standout features is the extra-long garage, offering space not only for your vehicle but also additional storage – perfect for tools, bikes or weekend hobbies.
Financials:
Strata Levies: Admin $329.01
Reserve $21.00,
Strata fees total $350.01 per quarter
Council Rates: $1,800 per annum
Water Rates: $1,100 per annum
Set close to local shops, schools, parks and transport, this is an easy-care home that delivers on functionality, comfort and location.
Close Proximity to:
• Phoenix Shopping Centre 1.3km
• Spud Shed 1.9km
• Phoenix Primary 1.9km
• St Jerome’s Primary School 2.4km
• Manning Park 2.7km
• Port Coogee 3.3km
• Fremantle 7.5km
Whether you’re looking to move in or invest, this is a smart opportunity in a popular Spearwood location, call Kasey Summers for further details or to arrange a viewing.
Disclaimer: Whilst every care has been taken in the preparation of the marketing for this property, accuracy cannot be guaranteed. Prospective buyers should make their own enquiries to satisfy themselves on all pertinent matters. Details herein do not constitute any representation by the Seller or the Seller’s Agent and are expressly excluded from any contract.
Related Listings
234 Hamilton Road, Spearwood WA 6163
22 Bullfinch Street, Spearwood WA 6163
Loan Repayment Calculator



