UNDER OFFER!
Act fast!
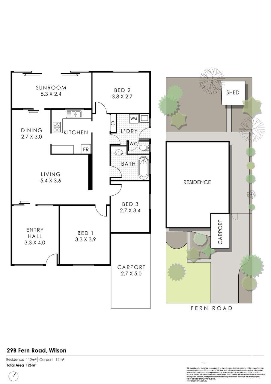
Nikki and Nik Varga are excited to bring to the market 29b Fern Road, Wilson.
Dream location opposite Canning Regional Park, this 3-bedroom duplex offers easy, convenient living with quick access to Carousel Shopping, Curtin University, Albany Highway, Leach Highway, and Manning Road – making Perth, Fremantle, and the airports all within easy reach. With a neutral palette, spacious living areas for a duplex, and everything you need neatly presented, it’s a move-in-ready home that ticks all the boxes.
WHAT YOU WILL LOVE:
– 3 Bedrooms, 1 Bathroom
– Bathroom includes bath, shower, vanity, and storage
– Large entry foyer/enclosed patio
– Brand new carpets and timber vinyl flooring throughout
– Freshly painted throughout
– Spacious L-shaped lounge and dining room
– Brand new kitchen with dishwasher, double sinks, oven, gas cooktop, rangehood, and ample storage
– LED lighting throughout
– Laundry with separate toilet
– Ducted evaporative air conditioning
– Rear enclosed patio/sunroom
– Gas storage hot water system
– Large backyard with shed
– Side gate access with room for extra storage
– Single carport with additional driveway parking
WHAT YOU NEED TO KNOW:
– Built in 1976- Strata home with no strata fees
– Council rates (approx.) – $1,790 p.a.
– Water rates (approx.) – $1,020 p.a.
– Potential rent return – $650-$700 per week
– Sevenoaks Senior College – 1.99km
– Wilson Primary School – 920m
– Cannington Community College – 1.45km
Call Nik and Nikki Varga today on 0419 956 944 to arrange your viewing.
DISCLAIMER: Whilst every care has been taken in the preparation of this advertisement, accuracy cannot be guaranteed. Prospective purchasers should make their own enquiries to satisfy themselves on all pertinent matters. Details herein do not constitute any representation by the vendor or the agent and are expressly excluded from any contract.
Related Listings
29B Fern Road, Wilson WA 6107
41 Wendouree Road, Wilson WA 6107
Loan Repayment Calculator



