SOLD!
Perfectly positioned 582sqm survey strata corner block!
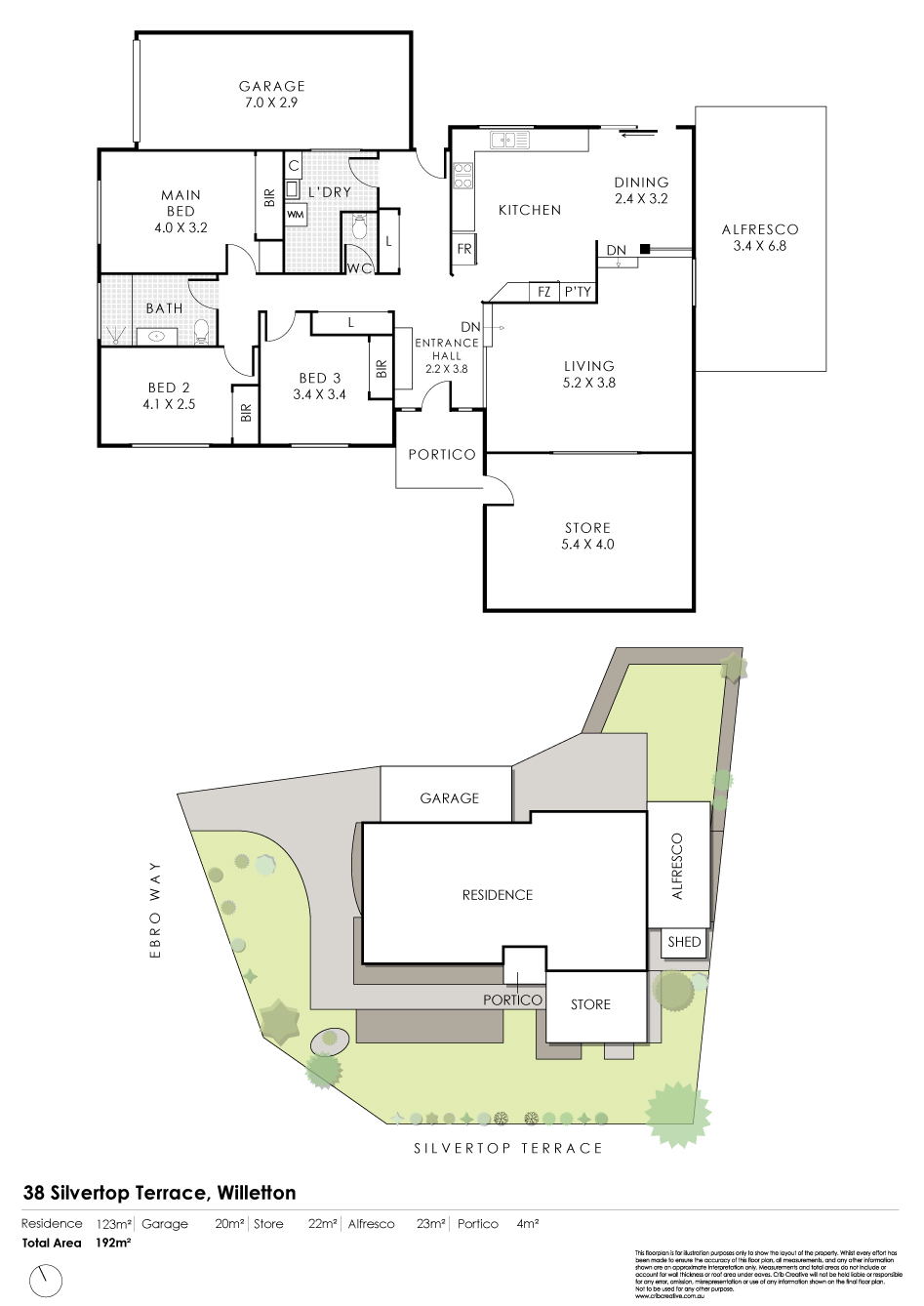
Nikki and Nik Varga are excited to bring to the market 38 Silvertop Terrace, Willetton.
Perfectly positioned on a corner block, this neat and well-presented 3 bedroom home is ready for you to move straight in and enjoy. With easy-care gardens and a practical layout, it’s the ideal choice for families, first-home buyers, or investors alike, all in the highly sought-after Willetton Senior High School zone.
WHAT YOU WILL LOVE:
• 3 bedrooms, 1 bathroom
• Main bedroom with built-in robes and split system air conditioning
• Bedrooms 2 and 3 with built-in robes and brand-new split system air conditioning
• Modernised bathroom with large shower, vanity, and toilet
• Separate second toilet
• Sunken lounge with split system
• Wood-look flooring and tiles throughout
• Large open kitchen and dining area with built-in cupboards
• Kitchen with oven, gas cooktop, storage cupboards, dishwasher, and plenty of bench space
• LED lighting throughout
• Freshly painted
• Large laundry with storage and sink
• Drive-through remote carport with extra parking space
• Undercover paved patio
• Garden shed
• Grassed backyard with hills hoist, and a grassed front yard with easy-care gardens
• Attached storage room at the front
WHAT YOU NEED TO KNOW:
• 582sqm block
• Willetton Senior High School – 1.35km
• Willetton Primary School – 730m
• Council rates p.a. approx. $1,950
• Water rates p.a. approx. $1,150
• Potential rent return: $750 – $800 per week
Call Nikki & Nik Varga today on 0419 956 944 to arrange your viewing.
DISCLAIMER: Whilst every care has been taken in the preparation of this advertisement, accuracy cannot be guaranteed. Prospective purchasers should make their own enquiries to satisfy themselves on all pertinent matters. Details herein do not constitute any representation by the vendor or the agent and are expressly excluded from any contract.
Related Listings
98A Acanthus Road, Willetton WA 6155
24 Westward Street, Willetton WA 6155
15 Uplands Gardens, Willetton WA 6155
135 Pinetree Gully Road, Willetton WA 6155
Lot 1, 3 Hobart Place, Willetton WA 6155
Loan Repayment Calculator






