UNDER OFFER!
The Perfect First Home or Investment Opportunity!
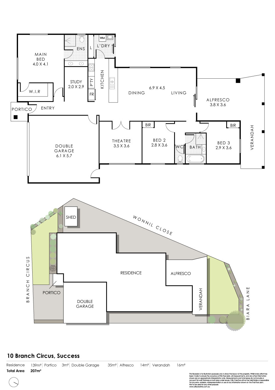
Nikki Varga is proud to present 10 Branch Circus, Success – a beautifully maintained, low maintenance home offering modern comfort, multiple living zones, and a layout that suits both first home buyers and savvy investors. Set on a 398sqm block, this home delivers a practical, welcoming design in a location close to schools, shops and transport. Currently leased to an excellent tenant who would love to stay on, this is a secure and appealing opportunity from day one.
WHAT YOU WILL LOVE:
– Main bedroom with split system air-conditioning, walk-in robe, and ensuite with double sinks, shower and toilet
– Bedrooms 2 and 3 with built in robes
– Main bathroom with shower, bath and vanity
– Open plan kitchen, living and dining with split system air conditioning
– Kitchen featuring dishwasher, double sinks, 900mm oven, 900mm gas cooktop, rangehood, pantry, ample storage and bench space, and double fridge recess
– Solid timber flooring throughout main living areas
– Theatre room with double door entry
– Activity nook / study
– Laundry with linen cupboard
– Security screen front door
– Alarm system
– 3.5kW solar system
– Double lock up garage
– Undercover alfresco area under the main roof with extended verandah
– Reticulated lawns and garden beds
– Garden shed
WHAT YOU NEED TO KNOW:
– Solid brick and tile home built in 2010- 398sqm block with over 145sqm living
– Emmanuel Catholic College – 460m
– Jandakot Primary School – 810m
– Council rates p.a. approx. – $1,975
– Water rates p.a. approx. – $1,325
– Potential rent return per week – $750
Call Nikki Varga today on 0419 956 944 to arrange your viewing.
DISCLAIMER: Whilst every care has been taken in preparing this advertisement, accuracy cannot be guaranteed. Prospective purchasers should make their own enquiries to satisfy themselves on all pertinent matters. Details herein do not constitute any representation by the vendor or the agent and are expressly excluded from any contract.
Related Listings
2 Astroloma Drive, Success WA 6164
10A Makjanich Place, Success WA 6164
2B Butterfly Loop, Success WA 6164
5 Modong Nook, Success WA 6164
37 Jubilee Avenue, Success WA 6164
10/18 Jacksonia Promenade, Success WA 6164
39B Jubilee Avenue, Success WA 6164
10 Steiner Avenue, Success WA 6164
10 Branch Circus, Success WA 6164
Loan Repayment Calculator










