Modern and move in ready - Rossmoyne SHS Zone! GRAND OPENING Sun 19th April 11.20am - 12pm
Nik Varga is proud to bring to the market 6 Dewey Street, Shelley.
Tucked away in a peaceful cul-de-sac within the highly sought-after Rossmoyne Senior High School zone, 6 Dewey Street, Shelley presents a contemporary haven of style, comfort and effortless living.
Built in 2019 and immaculately maintained, this sophisticated residence showcases a refined neutral palette, quality finishes throughout and a seamless indoor-outdoor lifestyle. This home is move-in ready and designed for relaxed family living.
Enjoy the convenience of being just moments from local cafés, shopping precincts, great schools and public transport, and only a 5-minute stroll from the picturesque Canning River. With contemporary finishes, generous living spaces, low maintenance and nothing left to do, it’s a home where every detail has been thoughtfully considered.
It’s ready to be enjoyed from day one.
WHAT YOU WILL LOVE:
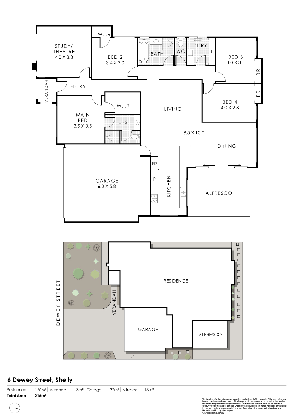
• 4 bedrooms, 2 bathrooms
• Main bedroom positioned at the front of the home, generously sized with a walk-in robe and ensuite featuring a large shower, separate toilet and vanity
• All minor bedrooms are generously sized – with floor-to-ceiling built-in robes, one walk-in and two mirrored
• Main bathroom includes a bath, shower and vanity
• Second toilet is separate off hallway
• Separate large theatre/home office at the front of the home
• Open plan kitchen, living and dining with shopper’s entrance
• Kitchen includes microwave nook, double fridge recess, 900mm oven and gas cooktop, rangehood, double integrated sinks, Miele dishwasher, double wall pantry, loads of storage cupboards, drawers and bench space, and bar seating
• Dining/meals area overlooking and with direct access to the rear patio entertaining area
• Laundry with floor-to-ceiling built-in linen cupboard
• 31-course ceilings
• Stone benchtops throughout
• Feature lighting throughout
• Quality blinds and plantation shutters throughout
• LED lighting
• NBN fibre to the home
• Aggregate driveway and outdoor areas
• Ducted reverse cycle air conditioning
• Instantaneous gas hot water system
• Solar system
• Reticulated, manicured gardens to the front and rear
• Outdoor alfresco entertaining area under the main roof
• Side gate access
• Double lock-up garage
• Phyn smart home leak detection and monitoring system
WHAT YOU NEED TO KNOW:
• 333sqm survey-strata block with over 166sqm of living and 38sqm garage
• Built in 2019
• Water rates p.a. approx. – $1,360
• Council rates p.a. approx. – $1,980
• No strata fees
• Potential rental return per week – $800 – $850
• Riverton Primary School – 910m
• Rossmoyne Senior High School – 4.1km
Call Nik Varga today on 0418 921 300 to arrange your viewing.
DISCLAIMER: Whilst every care has been taken in the preparation of this advertisement, accuracy cannot be guaranteed. Prospective purchasers should make their own enquiries to satisfy themselves on all pertinent matters. Details herein do not constitute any representation by the vendor or the agent and are expressly excluded from any contract.
Related Listings
6 Dewey Street, Shelley WA 6148
Loan Repayment Calculator


