SOLD!
R40 zoned block with subdivision potential in the Rossmoyne High zone!
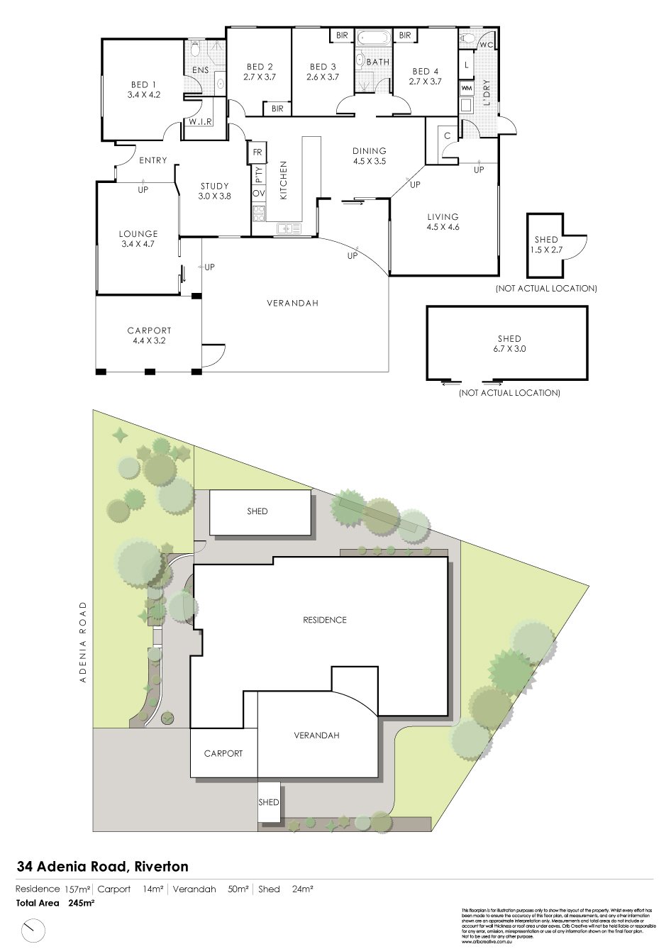
Nikki Varga is excited to bring to the market 34 Adenia Road, Riverton.
Perfectly positioned directly opposite Adenia Park, this 692sqm property is zoned for Rossmoyne and Lynwood Senior High Schools and just metres from the beautiful Canning River Heritage Trail. With local shops, cafes and everyday amenities all close by, this is a fantastic opportunity in a sought-after location.
WHAT YOU WILL LOVE:
• 4 bedrooms, 2 bathrooms
• Main bedroom with walk-in robe and ensuite including shower, vanity and toilet
• All minor bedrooms with free-standing robes
• Main bathroom with bath, shower and vanity
• Formal sunken lounge and dining area
• Second dining and sunken living space
• Kitchen with stone benchtops, deep fridge recess, dishwasher, double sinks, wall oven, gas cooktop and plenty of storage
• Vertical blinds throughout
• Ducted evaporative air conditioning
• Large undercover paved entertaining area with outdoor fan
• Grassed front and rear yards – with room for a future pool
• Easy-care gardens with zoned reticulation
• Garden shed
• Single carport with extra parking space
WHAT YOU NEED TO KNOW:
• Built in 1981 – Sub division potential with R40 zoning
• 692sqm block with over 165sqm of living
• Council rates p.a approx. – $2,310
• Water rates p.a approx. – $1,310
• Approximate potential rent return per week – $850
Call Nikki Varga today on 0419 956 944 to arrange your viewing.
DISCLAIMER: Whilst every care has been taken in the preparation of this advertisement, accuracy cannot be guaranteed. Prospective purchasers should make their own enquiries to satisfy themselves on all pertinent matters. Details herein do not constitute any representation by the vendor or the agent and are expressly excluded from any contract.
Loan Repayment Calculator

