UNDER OFFER!
LOCATION IS THE KEY!!
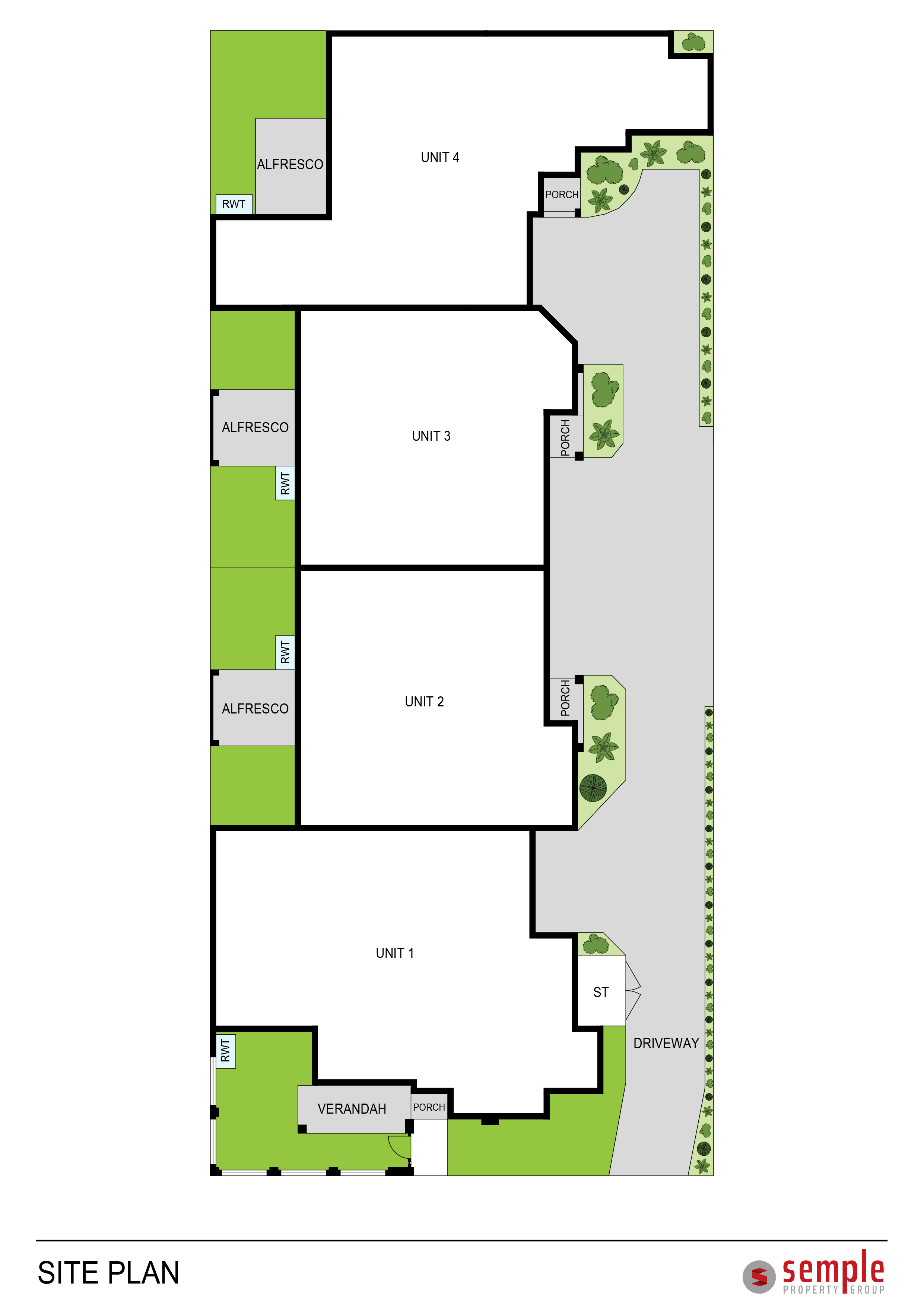
4x BRAND NEW 2-Bedroom Homes with Modern Comforts in Hamilton Hill.
Properties 1 & 4 – 2 bedrooms, 2 bathrooms, 2 garages.
Properties 2 & 3 – 2 bedrooms, 1 bathroom, 1 garage.
1-4/6 Ashbourne Way, Hamilton Hill
Welcome to your new sanctuary at 1-4 /6 Ashbourne Way. A beautifully Development presented by VIVA!!!
DUE TO START IN FEB 2025,,,,, 2-bedroom houses nestled in the vibrant community of Hamilton Hill. Delightful properties combine modern living with a warm, inviting atmosphere, making it the perfect place to call home.
Some Key Features:
**Spacious Bedrooms:** Enjoy two generously sized bedrooms equipped with built-in robes, providing ample storage space and comfort.
**Modern Bathroom:** The well-appointed bathroom features contemporary fixtures and finishes, ensuring convenience for you and your guests.
**Secure Parking:** With a remote garage and secure parking options, you can rest easy knowing your vehicle is protected.
2x HOMES with D/ L/ UP for 2 cars.
**Climate Control:** Stay comfortable year-round with reverse cycle air conditioning, ensuring a pleasant environment regardless of the season.
**Outdoor Living:** Embrace the outdoors with a fully fenced courtyard, perfect for entertaining friends and family or enjoying a quiet moment in your own private space under the alfresco bbq area.
**Eco-Friendly Features:** This home is equipped with ceiling insulation and water-efficient appliances, promoting sustainability and reducing utility costs.
**Pet-Friendly:** Your furry friends are welcome here, making it a perfect choice for pet lovers.
**Additional Amenities:**
– Internal laundry for added convenience
– Alarm system for enhanced security
– Outdoor entertaining space for gatherings and relaxation
Theses properties are a lifestyle. With its prime location in Hamilton Hill, you’ll enjoy easy access to local amenities, parks, and schools, making it ideal for families and professionals alike.
Don’t miss this opportunity to secure your dream home. For more information and experience all that theses charming properties offer just call JOHN LA MACCHIA.
DISCLAIMER: Whilst every care has been taken in the preparation of the marketing for this property, accuracy cannot be guaranteed. Prospective buyers should make their own enquiries to satisfy themselves on all pertinent matters. Details herein do not constitute any representation by the Seller or the Seller’s Agent and are expressly excluded from any contract.
Related Listings
30 Headland Road, Hamilton Hill WA 6163
4/6 Ashbourne Way, Hamilton Hill WA 6163
4/6 Ashbourne Way, Hamilton Hill WA 6163
1-3/6 Ashbourne Way, Hamilton Hill WA 6163
Loan Repayment Calculator




