SOLD!
Boutique Luxury Living in the Heart of Cockburn Central
Crafted to an exceptional standard and exuding the sophistication of a boutique hotel, this brand-new Beyond Residential masterpiece sets a new benchmark for quality in Cockburn Central. Designed for buyers who appreciate refined finishes, effortless functionality, and low-maintenance luxury, this three-bedroom home delivers an elegant lifestyle with absolutely nothing to do but move in and enjoy.
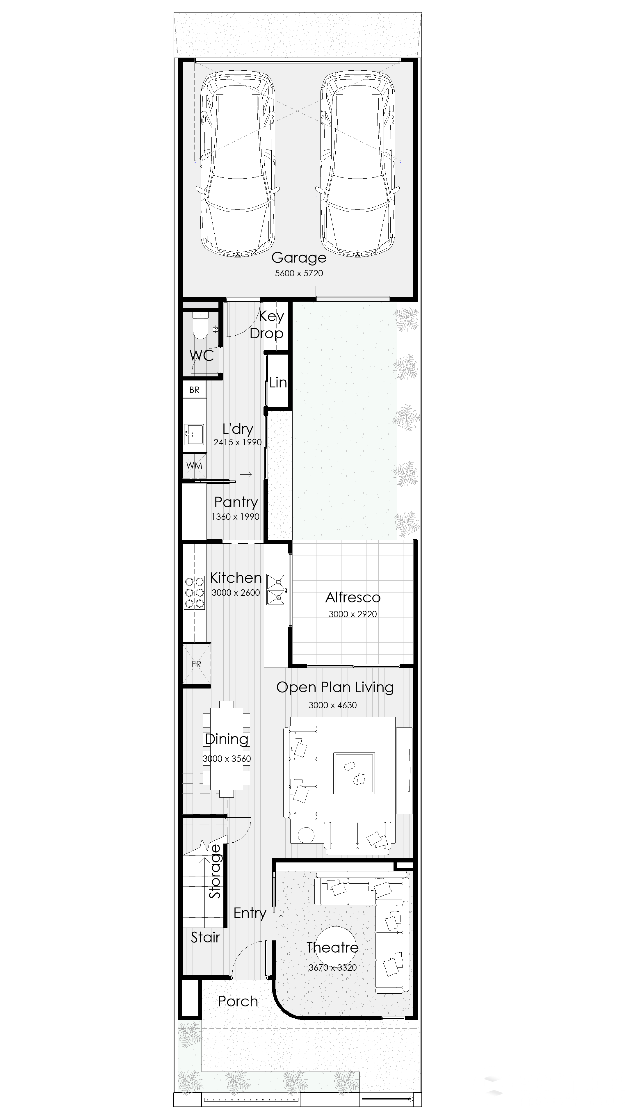
Step inside to discover a masterfully executed layout across a generous 170sqm floorplan. Sun-filled living spaces, premium materials, and thoughtful architectural details work in harmony to create a warm yet refined ambience. From the glass balustrade staircase to the gold-trimmed frameless shower screens, every element has been meticulously selected to enhance both beauty and practicality.
The open-plan kitchen is a standout, appointed with designer finishes that elevate daily living. A 900mm Haier 10-function oven and induction cooktop make entertaining a joy, while the undermount sink, overhead cabinetry with feature shelving, and a well-positioned laundry with plentiful storage, plus a key drop nook from your shopper’s entry with floating timber bench add to the home’s streamlined functionality.
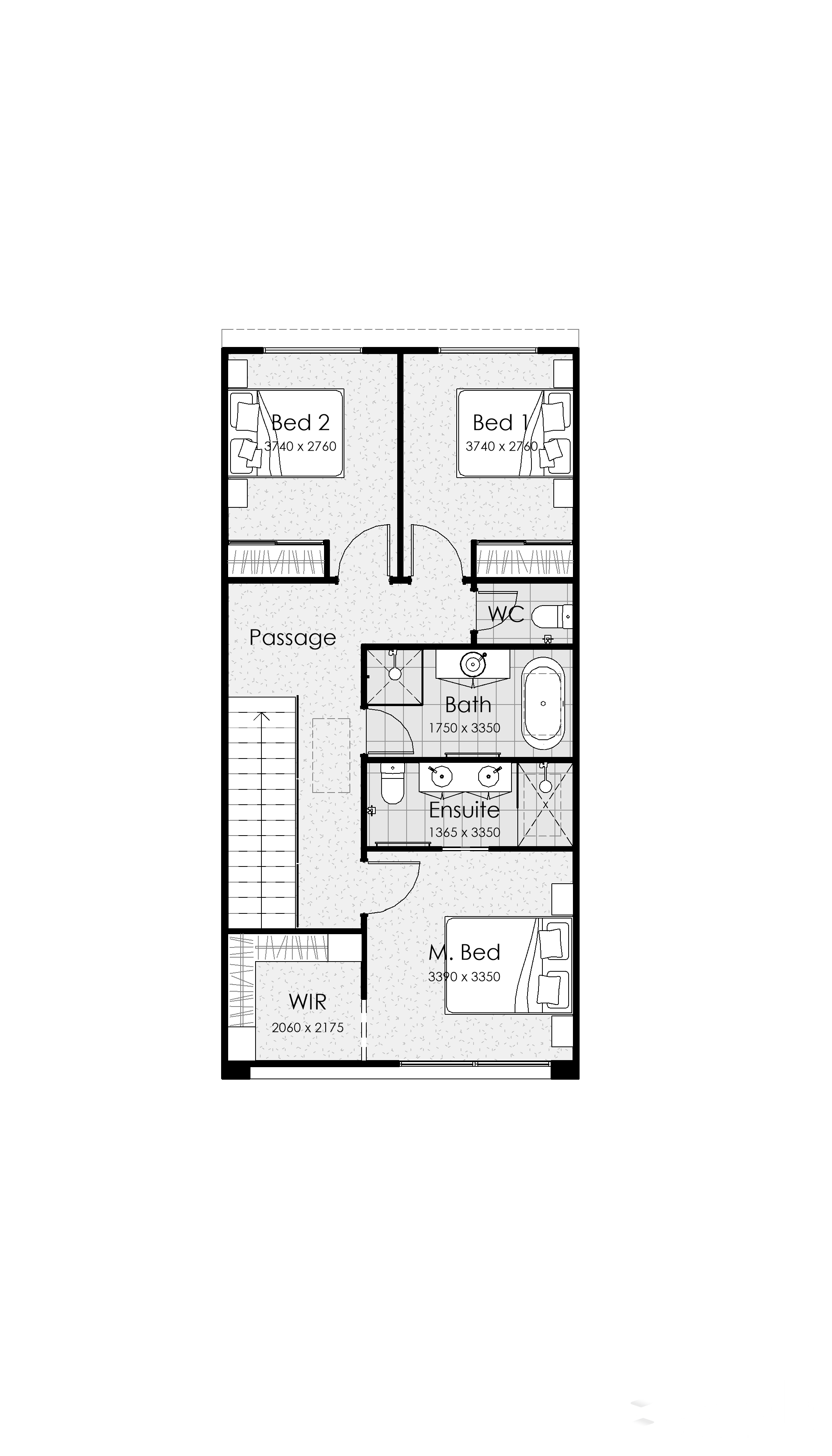
Upstairs, the bedroom accommodation is peaceful and beautifully finished, complete with durable, stain-resistant Malvern carpet and generous storage. Natural light pours through skylights to the bathroom, ensuite, and staircase, enhancing the calming ambience. Designed with everyday comfort in mind, the home includes reverse-cycle air-conditioning throughout and thoughtful touches like a boxed-out bath shelf, and purposeful shower niches.
The integrated alfresco provides an extension of the living space, finished with feature tiling and a dedicated bar-fridge perfect for relaxed evenings at home. Low-maintenance artificial lawn keeps the backyard looking pristine, while a roller door from the outdoor area into the double secure garage offers exceptional convenience.
Located in a thriving urban pocket, this home is ideal for buyers seeking a lock-and-leave lifestyle without compromising on space, design, or quality. Whether you’re stepping into your first home, downsizing in style, or securing an impressive investment, this property promises a lifestyle of ease, elegance, and modern comfort.
Features You’ll Love:
• Brand-new Beyond Residential construction
• Double secure garage with roller door access to backyard
• Reverse-cycle air-conditioning ensuring comfort all year round
• Timber castellation feature cladding to façade
• Premium gold Fienza tapware & accessories
• 900mm Haier 10-function oven & induction cooktop
• Frameless shower screens with gold brackets
• Overhead kitchen cabinetry with feature timber shelving
• Undermount kitchen sink
• Integrated alfresco with feature tiled flooring
• Malvern stain-resistant carpet
• Skylights to bathroom, ensuite, and staircase
• Low-maintenance artificial lawn
Close proximity to:
• Mojo Park 270m
• Cockburn Aquatic & Recreation Centre 1.3km
• Cockburn Central Train Station 2.4km
• Lakes Shopping Centre 2.8km
Indulge in boutique luxury living without compromise. Contact Kasey Summers today or visit the next home open.
DISCLAIMER: Whilst every care has been taken in the preparation of this advertisement, accuracy cannot be guaranteed. Prospective purchasers should make their own enquiries to satisfy themselves on all pertinent matters. Details herein do not constitute any representation by the vendor or the agent and are expressly excluded from any contract.
Related Listings
57/1 Kentucky Court, Cockburn Central WA 6164
Lot 334, Taffeta Way, Cockburn Central WA 6164
Lot 335, Cashmere Terrace, Cockburn Central WA 6164
178 Semple Court, Cockburn Central WA 6164
Cockburn Central WA 6164
Cockburn Central WA 6164
Cockburn Central WA 6164
Cockburn Central WA 6164
Cockburn Central WA 6164
Cockburn Central WA 6164
32 Filly Avenue, Cockburn Central WA 6164
11 Equitation Terrace, Cockburn Central WA 6164
Loan Repayment Calculator














