SOLD!
The Ultimate Family Acreage Escape!
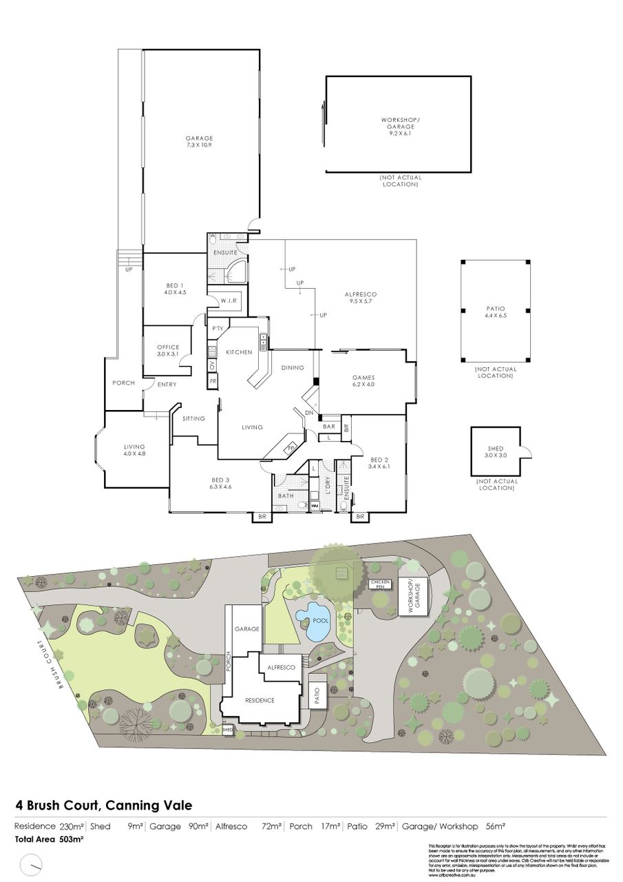
Nikki Varga is proud to bring to the market 4 Brush Court, Canning Vale.
Tucked away in a quiet cul-de-sac, this stunning home has everything you could wish for and more. Set on a massive 5,711sqm block with 209sqm of living under the main roof, it offers manicured gardens, a resort-style pool, and a beautifully presented home that’s been cared for to perfection.
WHAT YOU WILL LOVE:
• 3 large bedrooms, home office/smaller 4th bedroom and 3 bathrooms
• Main bedroom with garden view, ceiling fan, walk-in robe, ensuite with spa bath, shower, vanity with double sinks, plus alfresco access (great when entertaining)
• Super size 2nd and 3rd bedrooms. Bedroom two featuring roller shutters, sliding barn doors, two built in robes and brand new ensuite. Bedroom three adjacent to a freshly renovated bathroom, perfect teens retreat. Both rooms are freshly painted and have new carpet.
• Sunken lounge at entry with new carpet
• Sitting room/ reading nook
• Open-plan kitchen, dining, and lounge
• Sunken games room with built in bar and roller shutters, direct access to alfresco.
• Kitchen featuring new cabinetry, stone bench tops, dual sink and handy servery window to alfresco. Double Electrolux oven, gas cooktop, Asko rangehood and Miele dishwasher. Double fridge recess with plumbing for ice/water.
• High gabled ceilings with Velux skylights
• Renovated laundry with ample storage and pull-out hamper and direct outdoor access
• LED lighting throughout
• Luxaflex blinds throughout
• Roller shutters to rear windows
• Alarm system with CCTV cameras
• 2 gas bayonets
• Brand new Breezeair Evaporative air conditioning
• Solar hot water with electric booster
• 3-phase power
• Enormous paved alfresco with LED lighting and raised deck. X-large ceiling fan and ziplock café blinds. Second paved patio allowing for multiple entertaining areas all with views of the pool.
• Fully automatic below-ground resort-style below ground pool with robotic cleaner
• Dual access driveways giving access to the powered shed and rear of the property
• 3-car garage (80sqm) with 2 motorised roller doors
• Powered shed
• Large fox proof fenced chicken yard with new custom made coop.
• Reticulated raised veggie garden beds
• Fully reticulated gardens with bore, new programmable wifi controller.
• Manicured lawns and gardens to the front and back yards
• Mature fruit trees – mango, lemon, lime, avocado, kaffir lime, olive, and guava
WHAT YOU NEED TO KNOW:
• Built in 1988
• 5,711sqm block with 209sqm living
• Close proximity to the new Metronet
• Canning Vale Primary School – 960m
• Canning Vale College – 1.9km
• Council Rates approx. p.a. – $3,020
Contact Nikki Varga today on 0419 956 944.
Disclaimer: Whilst every care has been taken in the preparation of the marketing for this property, accuracy cannot be guaranteed. Prospective buyers should make their own enquiries to satisfy themselves on all pertinent matters. Details herein do not constitute any representation by the Seller or the Seller’s Agent and are expressly excluded from any contract.
Loan Repayment Calculator

