SOUGHT AFTER BULL CREEK LOCATION!
GRAND OPENING Mon 27th April 1.50pm – 2.30pm!
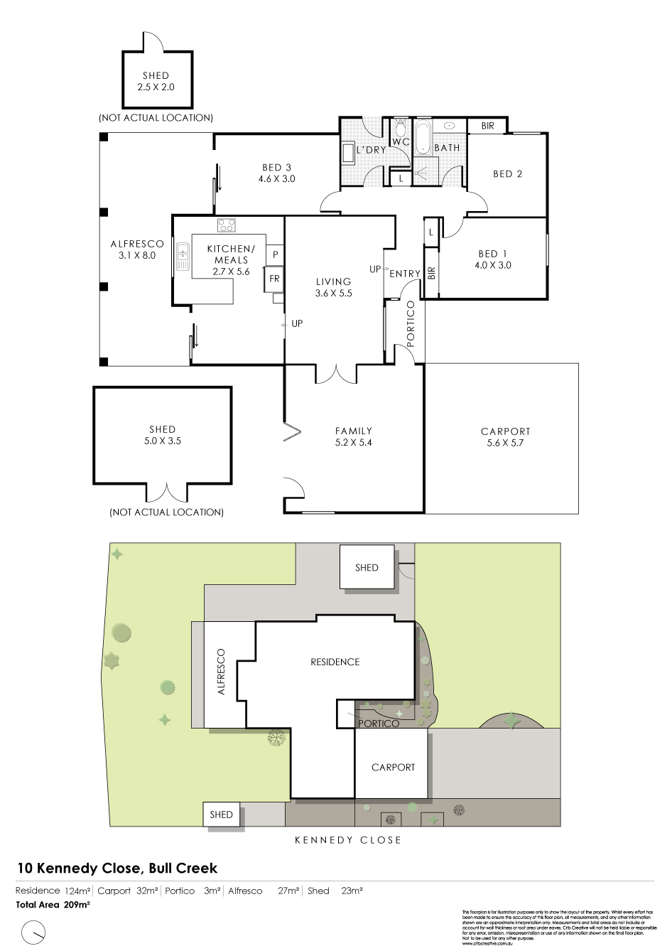
Nikki Varga is proud to present to the market, 10 Kennedy Close, Bull Creek.
A modernised home on a very generous 763sqm block in a quiet cul-de-sac. Enjoy multiple living spaces and great outdoor entertaining, all just 300m to Murdoch Train Station, 400m to Bull Creek shops, and with easy access to the freeway and Fiona Stanley Hospital. A fantastic opportunity for convenient, easy living in a sought-after location.
WHAT YOU WILL LOVE:
– 3 bedrooms, 1 bathroom
– Main bedroom with feature shelving and built-in wardrobe
– Bedroom 2 with built-in wardrobe, bedroom 3 with split system air conditioning and access to the outdoor area
– Main bathroom includes shower, bath, vanity and basin
– Sunken lounge off the main entrance with decorative ceiling beams and gas bayonet
– Open plan kitchen and dining area with split system air conditioning
– Kitchen includes 900mm oven and gas cooktop, rangehood, dishwasher, built-in microwave nook, built-in pantry, double fridge recess, loads of bench space and storage cupboards
– Great sized second living area with access to the outdoors
– Freshly painted throughout
– Timber-look flooring and arch features throughout
– 2 linen cupboards and laundry with built-in basin and separate toilet
– Double carport
– Reticulated lawns and garden beds
– Undercover patio entertaining area
– 2 x garden sheds
– Electric hot water system
WHAT YOU NEED TO KNOW:
– Solid brick and tile home built in 1976
– 763sqm block with over 154sqm of living
– Water rates p.a. approx. $1,235
– Council rates p.a. approx. $2,100
– Potential rental return $780 – $850 per week
– Leeming Senior High School – 1.26km
– Bull Creek Primary School – 860m
– Corpus Christi College – 1.09km
Call Nikki Varga today on 0419 956 944 to arrange your viewing.
DISCLAIMER: Whilst every care has been taken in the preparation of this advertisement, accuracy cannot be guaranteed. Prospective purchasers should make their own enquiries to satisfy themselves on all pertinent matters. Details herein do not constitute any representation by the vendor or the agent and are expressly excluded from any contract.
Related Listings
10 Kennedy Close, Bull Creek WA 6149
11A Rockett Way, Bull Creek WA 6149
Loan Repayment Calculator



